中古一戸建

相馬袋町中古戸建A・B棟

接道がございません、再建築不可となります。間取りが3Kの雰囲気溢れる売買情報はこちらです。建物面積101.21平米の物件です。子供が汚しても大丈夫、ご家族にお勧めの中古の戸建て物件で新しい暮らしを。駅徒歩15分の場所にある物件です。お客様の住まい探しをサポート致します。相馬市で不動産の購入を検討しているのであれば、お気軽にお問い合わせください。

反転あり
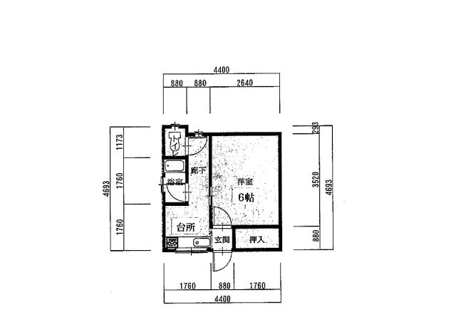
【間取り】
反転あり
【間取り】
【間取り】
【外観】
【外観】
【その他】
【その他】

/

反転あり
【間取り】
【外観】
【その他】
所在地

福島県相馬市中村字袋町34 地図を見る

価格
交通 常磐線 相馬駅 徒歩15分
築年数 築61年 建物面積 101.21㎡
間取り 3K 土地面積 136.69㎡

この物件にお問い合わせ

いい部屋ネット 仙台駅東口店

0800-100-1346

営業時間
10:00~18:00 12:30~13:30は昼休憩
定休日
火・水曜日  冬季休暇12月22日~1月4日
お問い合わせ

物件特徴

  • 平坦地

物件詳細

所在地 福島県相馬市中村字袋町34
交通 常磐線 相馬駅 徒歩15分
間取り/詳細 3K/ 建物面積(坪数) 101.21㎡(30.61坪)
価格 400万円
駐車場/月額料金 無/-
土地の敷金/保証金 -/- 借地料/借地期間 -/-
土地権利 所有権 土地面積(坪数) 136.69㎡(41.34坪)
傾斜地部分面積 - 路地状敷地 -
私道負担面積/セットバック -/無 高圧線下面積 -
地目/地勢 宅地/平坦 接道状況 -
建ぺい率/容積率 60%/200% 用途地域 第一種住居
都市計画 - 種別/構造 中古一戸建/木造
階建 2階建 築年月(築年数) 1964年 5月 (築61年)
総区画数/販売区画数 2区画/2区画 向き -
現況 空家 その他の法令上の制限 -
取引態様/引渡時期 一般媒介/相談 建築確認番号 -
物件番号 95196353 取引条件の有効期限 2026年02月25日
情報更新日 2026年02月11日 次回更新予定日 2026年02月25日
設備条件
  • プロパンガス
  • 公営水道
  • 汲取排水
  • ガスコンロ
備考 こちらの投資物件はコンビニまでの距離が97mです。新生活を始めるなら、この400万円の物件。駅まで歩いて15分ほどの物件です。当社では常磐線相馬周辺の物件情報をご用意しておりますので、お求めの方はお気軽にお問い合わせください。
取扱会社 いい部屋ネット 仙台駅東口店
TEL:0800-100-1346
国土交通大臣 (2) 第9120号
全国住宅産業協会 関西住宅産業協会 日本賃貸住宅管理協会

※価格は物件の代金総額を表示しており、消費税が課税される場合は税込と表記の上、税込価格で表示しております。

※現況と異なる場合には現況を優先します。

この物件へのお問い合わせはこちら

いい部屋ネット 仙台駅東口店

お電話でのお問い合わせ

0800-100-1346

営業時間
10:00~18:00 12:30~13:30は昼休憩
定休日
火・水曜日  冬季休暇12月22日~1月4日

WEBからのお問い合わせ

お問い合わせ

ローンシミュレーション

※この物件を購入した場合の、月々の支払い価格の一例です。借り入れを保証するものではございません。

毎月の返済額

00.00

万円/月

金利
00.00万円/月
元金
00.00万円/月
年間の返済額
00.00万円/年

物件価格

万円

ボーナス

万円

ボーナス時の加算金額をご入力ください。(1回あたり)
※自動で年2回分で計算されます。
※毎月の希望返済額と合算したボーナス月の返済額ではありません。

金利

%

※元利均等方式 金利5.00%まで 

頭金

万円

返済期間

※返済年数5〜50年まで入力できます。

周辺情報

  • ローソン相馬中村北店

    ローソン相馬中村北店
    約97m/2分

  • 相馬駅

    相馬駅
    約1150m/15分

担当者コメント

担当者画像

新着情報:相馬袋町中古戸建A・B棟の空室情報ならコチラ。建物面積84.72㎡なので、家族向けです。駅まで徒歩15分の場所に立地しています。

この物件へのお問い合わせはこちら

*は必須項目です。

お問い合わせ内容 *
お名前 *
メールアドレス *
電話番号 *
備考欄 *

店舗情報

会社画像

店舗名 いい部屋ネット 仙台駅東口店
お問い合わせ先 0800-100-1346
営業時間 10:00~18:00 12:30~13:30は昼休憩 定休日 火・水曜日  冬季休暇12月22日~1月4日
住所
宮城県仙台市宮城野区榴岡3丁目7-30 降旗ビル 101号室

地図を見る

免許番号 国土交通大臣 (2) 第9120号
加盟 : 全国住宅産業協会 関西住宅産業協会 日本賃貸住宅管理協会